您好,欢迎您访问 无锡市双瑞机械有限公司 的官方网站! 结晶过滤洗涤干燥设备的老牌生产厂家及大型工程整体解决方案提供商

产品列表

无锡市双瑞机械有限公司
地 址: 无锡市惠山区前洲镇北七房村
联系人: 王经理
手 机: 13861731823
电 话: 0510-83451680
邮 箱: wuxishuangrui@163.com
邮 编: 214000
网 址: www.wxfiltdry.com
您现在所在的位置:首页 > 产品中心
无菌级耙式真空干燥机

产品详情

产品概述

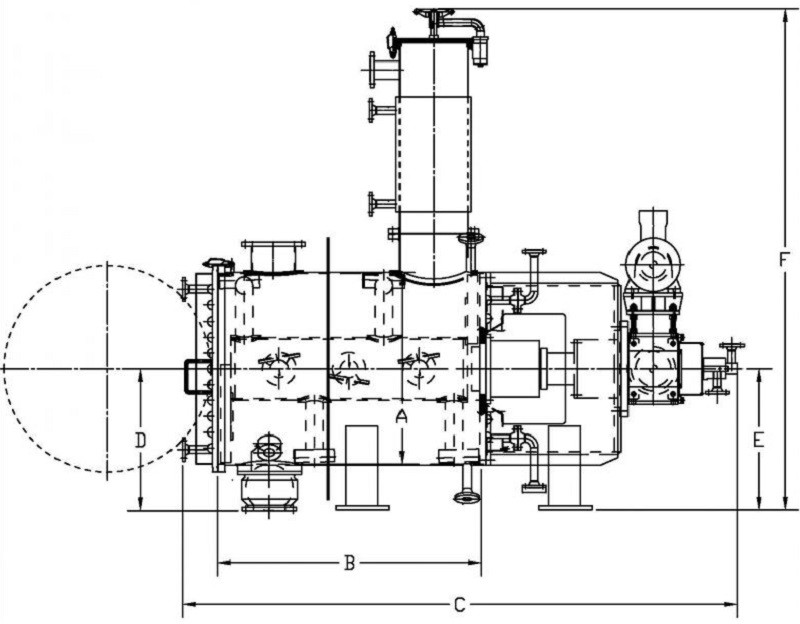
  无菌级耙式干燥机是一种集干燥、混合为一体的多功能全密闭的真空干燥设备,适用于制药工业中无菌产品的生产。主要用于抗生素、API、精细化工等对卫生级要求高的粉体干燥和混合。为了保障工艺区与技术区完全隔离,HPG型无菌级耙式干燥机采用卧式穿墙安装方式,从根本上避免对产品造成的污染。
  无锡双瑞研制的无菌级耙式干燥机适合于批次干燥以下类型的产品:颗粒状的结晶产品/甚至在低温下也会变性的热敏性产品/来自于压滤机或离心机的有毒的或易氧化的产品。由于这种干燥机具有连续不断的对产品进行混合搅拌、对粉料的加热和冷却都具有优良的换热性能、在线取样、不需要破坏真空和停机的特点,所以大大缩短了干燥时间。

工作原理

  无菌级耙式干燥机是适用于大型生产的经济型,功能强大的多用途设备。 适用于作为混合机、反应器、干燥机使用,可以按照要求设计为在真空或压力下操作。 通过加热罐壁、封头以及搅拌轴和搅拌桨从而使得加热面积非常大,导致传热效率特别好。 轴密封可以采用填料箱,也可以与双端面湿式、干式或非接触式机械密封互换。 由于搅拌桨与罐壁间的间隙很小以及搅拌桨的特殊设计使得排料性能很好。 符合cGMP和FDAHDS型真空耙式干燥机适用于制药工业中无菌产品的生产,包括:一个快开式平封头;一个特殊的悬臂式安装的搅拌,上面装有加热的搅拌桨;一个双端面机械密封;一个除尘器;一个安装在底部的排料阀或一个安装在平封头上的活塞式排料阀。

性能特点

  (1) 密闭性能好,洁净度高,全部密封元件均选用符合GMP要求的材质制造;
  (2) 无异物污染:搅拌轴与腔体之间为特殊机械密封,确保产品免受润滑油及其它异物的污染,满足无菌级生产要求;
  (3) 热效率高:所有与物料接触的表面都是加热的,如罐体、后封头、前封头、搅拌和除尘器,均匀伴热,换热面积大,这可提供高效的换热效率;
  (4) 干燥效果佳:加热的搅拌轴在对物料内外层之间进行置换的同时,有效的避免物料的挂壁和结块,因而有利于干燥,提供了干燥后物料的品质;
  (5) 快开式平封头便于打开清洗验证,出料、取样、卸料顺畅,残留少;
  (6) 双端面湿式、干式或者非接触机械密封适合于无菌产品的生产;
  (7) 配备CIP清洗和SIP在位高温灭菌系统,可短时间内实现不同产品的加工转换;
  (8) 符合cGMP和FDA;

技术参数

返回产品列表
Copyright © 无锡市双瑞机械有限公司 版权所有 未经许可不得使用、转载、摘编。